Проекты каркасных домов: особенности строительства
Проект каркасного дома представляет собой комплект документов на строительство. Его можно использовать как пошаговую инструкцию к возведению каркасного дома своими руками. Он также позволяет контролировать правильность и ход выполнения строительных работ, и расход строительных материалов. Какими бывают проекты каркасных домов для постоянного проживания? И что учесть при их выборе?
Каркасное строительство
Каркасное строительство отличается относительной простотой, ценовой доступностью и скоростью возведения. Стены каркасного дома можно собрать всего за несколько дней, а сам каркасный дом для круглогодичного проживания – под ключ построить в течение месяца.
Его сооружение не потребует умения класть кирпич. Каркасник похож на конструктор, который собирается из отдельных элементов и соединяется с помощью болтов, анкеров, шурупов, гвоздей. Описание процесса сборки и перечень материалов, деталей для строительства содержатся в проектах каркасных строений.


Стоимость проекта не превышает 5% от стоимости строительства. При этом в нём содержится масса необходимой информации. Профессиональные расчёты, обоснованный выбор строительных материалов, выбор инженерных коммуникаций – всё, что позволит построить дом надёжно и качественно. Как составляется проектная документация, и что необходимо знать для покупки проекта каркасного строительства?
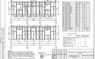
Чертежи и описания
Технология каркасного строительства позволяет возводить дома различной этажности, размеров и предназначения. От небольших одноэтажных каркасных дачных домов сезонной занятости до полноценных трёхэтажных жилых коттеджей для круглогодичного проживания. Подробное описание технологии сборки строения содержится в проекте. Из чего он состоит?


Проектно-сметные документы предоставляют застройщику текстовую и графическую информацию. Текстовая информация представлена спецификациями деталей и описанием работ. Текстовая часть также содержит ссылки на нормативные документы, которые послужили основанием для расчётов. И расчётную стоимость строительства. В спецификации указывается общая площадь будущего каркасного дома и приводится полный перечень материалов для строительства.
Перечислим, какие чертежи могут содержать проекты каркасных домов для круглогодичного проживания:
- Схему организации земельного участка.


- Схему расположения внутренних помещений, детально для каждого этажа, так называемый план каркасного дома. Эти схемы также называют «объёмно-планировочными решениями».
- Так называемые «архитектурные решения» или архитектурный проект – изображение будущего строения на листе в трёхмерном формате.


- Схема кровли строения.
- «Разрез» строения – продольный и поперечный.
- Схемы прокладывания инженерных сетей – водоснабжения и водоотведения, отопления, газоснабжения, вентиляции и другие.
Рабочая часть
Кроме того, проект дома имеет так называемую рабочую и эскизную части. Рабочая часть каркасного дома состоит из трёх разделов:
- Архитектурного.
- Конструктивного.
- Инженерно-технического.
В инженерно-техническом разделе даётся информация об обустройстве инженерных сетей и коммуникаций — схемы разводки, выбор оборудования.


В конструктивном разделе содержится спецификация строительных материалов и перечень работ. А также планы фундамента, перекрытий, кровли, разрезы стен. При этом хороший проект каркасного строительства адаптирован для типовых материалов из строймагазина и для выполнения работ непрофессионалами.
Архитектурный раздел представляет наиболее обширную часть. Он содержит:
- План участка.
- Эскиз и описание фасада будущего каркасного дома с указанием его размеров.
- Планы этажей и помещений с указанием их размеров и площади.
- Обозначение расположений проёмов, стен, перегородок, лестниц и др.


Подготовить и рассчитать комплект проектных документов может только лицо, которое имеет разрешение на подобные работы. Это может быть индивидуальный предприниматель или строительная организация. Лицо или организация, которая готовила проект, несёт ответственность за его качество и соответствие нормам.
Планировка дома
Существуют различные типовые решения планировки внутренних комнат. Их количество и размер определяются величиной семьи и габаритами дома. Традиционно для среднестатистической семьи из трёх-четырёх человек необходимы кухня, коридор, гостиная, два вспомогательных помещения – кладовка для хранения продуктов и кладовая для сезонных вещей, туалет и ванная в каркасном доме, а также спальни – одна, две или три (родителям и детям).


Современные нормы строительства определяют общую площадь для семьи как 20-23 кв. м на каждого человека. То есть для семьи из трёх-четырёх человек необходимы 80-90 кв. м общей площади. Которые делятся следующим образом:
- 20-30 кв. м – кухня;
- 20-30 кв. м – гостиная;
- 5-8 кв. м – каждая спальная комната.
- 2-4 кв. м – коридор;
- 2-4 кв. м – санузел;
- по 1-2 кв. м – кладовые.
Предлагаемое деление площади между комнаты является ориентировочным и окончательно определяется в процессе проектирования требованиями хозяев будущего жилья.
Расположение комнат относительно друг друга учитывает удобство пользования ими, а также возможность прокладывания инженерных коммуникаций. Так, кухня часто располагается рядом с ванной и туалетом, для удобства прокладывания водопроводных труб и канализации.
Каркасное строение отличается от кирпичного, бетонного или деревянного лёгкостью перепланировки. Каркасные перегородки между внутренними помещениями относительно несложно разобрать и сложить по-новому. Таким образом, расположение внутренних помещений каркасного дома можно менять, обустраивать заново, в зависимости от потребностей хозяев.


Стоимость
Стоимость проекта каркасного дома варьируется в широких пределах. Какие факторы влияют на цену каркасника:
- Уникальность проекта — типовые или индивидуальные расчёты. Разработка индивидуального проекта обходится дороже, чем покупка готового типового решения и его привязка к особенностям местности («адаптация»).
- Уровень деталировки. Дороже обходится более детальный проект, с множеством чертежей, эскизов и подробных описаний.
- Размеры будущего строения. Чем выше этажность каркасного дома – тем больше расчётов и чертежей необходимо выполнить в процессе проектирования строительства.
- Сложность архитектурных решений.
- Сложность предварительных геологических изысканий.
Готовые проекты каркасных домов имеют цену от 3 до 30 тыс. руб.
Технология каркасного строительства: особенности
Каркасный дом для круглогодичного проживания представляет собой лёгкое строение с утеплёнными стенами и кровлей. Его возведение не требует специфических строительных навыков. Необходимо уметь работать шуруповёртом, молотком, пилой, измерять уровень.


Самая сложная работа при строительстве каркасника, которая требует физических усилий и некоторых строительных навыков – это укладывание или заливка фундамента. Здесь присутствуют также грунтовые работы — выемка грунта и отсыпка ямы песком.
После заливки фундамента и его выстаивания приступают к сборке каркаса, стен, кровли, прокладыванию инженерных коммуникаций. Относительно небольшой вес стен и кровли позволяют приступить к строительству раньше чем через 28 дней. Уже через неделю после заливки бетона на готовом основании можно возводить каркасные стены.
Комплекс перечисленных мероприятий позволяет получить каркасный дом в течение месяца после начала его постройки.
Стоимость строительства и смета на материалы
Стоимость строительства каркасного дома определяется его размерами и выбором строительных материалов. При одинаковых размерах стен и кровли на цену строения будет влиять выбор утеплителя и стеновой отделки, материала кровли, наружный дизайн стен и внутренняя отделка помещений. Перечень строительных материалов, их размеры и характеристики содержаться в проектной спецификации (смете).


Стоимость постройки каркасного дома рассчитывается исходя из перечня строительных материалов (по спецификации) и строительных работ (из описательной части). К полученной смете добавляют цену проекта.
Правила строительства
Проекты каркасных домов для круглогодичного проживания выполняются в строгом соответствии с нормами строительства. В свою очередь, нормы и правила определяют содержание – количество чертежей и спецификаций, подробность описаний.


Грамотный проект разрабатывается по требованиям СНипов с учётом норм пожарной, экологической безопасности, медицинских требований. Кодекс градостроительства РФ предусматривает обязательную разработку проекта и сметы на любое масштабное строительство, капитальный ремонт, реконструкцию.
Исключения составляют постройки, предназначенные для проживания одной семьи, высота которых не превышает 3-х этажей. Однако проект обеспечивает качество и долговечность будущего строения. А если застройщик сам не является профессионалом, то использование проектной документации снимает с него необходимость вникать в расчёты и обоснование выбора. Поэтому для возведения каркасного дома своими руками лучше иметь готовый строительный проект.