Каркасный дом 6 на 7 является оптимальным вариантом для возведения собственного загородного жилья на небольшом земельном участке. Здание можно возвести в два этажа, тогда его общая полезная площадь составит около 80-ти м2. Это вполне достаточно для комфортного проживания стандартной семьи из 3-4 человек.


Общая информация
Небольшие дома каркасной конструкции 6х7 вполне можно обустроить для постоянного проживания. Каркасная технология предусматривает утепление таких зданий, проведение всех необходимых коммуникационных систем (свет, газ, вода, тепло). Поэтому в таком доме комфортно не только летом, но и зимой.


Возвести каркасный жилой дом размером 6х7 метров можно своими руками, предварительно выбрав готовый типовой проект по одной из каркасных технологий.
Финская технология возведения каркасных домов
Конструкция каркасных зданий по финской технологии считается самой простой для самостоятельного выполнения монтажных работ.


Данной технологией предусмотрено возведение каркасной конструкции, закладка теплоизоляционного материала и обшивка стен здания пиломатериалами снаружи и внутри здания.
Канадская технология возведения каркасных домов
По канадской технологии домостроения сборка каркаса и стен сооружения производится на строительной площадке или заводе. Внутренне пространство заполняют утеплительным материалом. С наружной стороны каркасные стены полностью покрывают гидроизоляционной мембраной, с внутренней – пароизоляционной пленкой, обшивая поверх плитами ОСБ или аналогами. После этого готовые части дома собирают на фундаменте.

Независимо от выбранной технологии частного домостроения все пиломатериалы перед сборкой в единую конструкцию обрабатывают специальными защитными средствами от влаги, гниения и плесени, против возгорания, грызунов и прочих вредных насекомых.


Преимущества и недостатки каркасных конструкции
Небольшие каркасные дома 6 на 7, как и постройки, возведенные по другим технологиям с использованием иных стройматериалов, имеют свои плюсы и минусы.
Преимущества:
- Доступная стоимость. Для возведения жилых домов используют наиболее дешевые строительные материалы. Здание не требует возведения мощного фундамента, соответственно получается значительная экономия на расходных материалах;
- Быстрота возведения конструкции. Каркасные здания достаточно легкие, не дают усадку. Сразу после обустройства фундаментного основания можно приступать к монтажу самого здания. А после обустройства кровельной конструкции можно сразу выполнять фасадную и внутреннюю отделку;
- Высокая прочность конструкции. При соблюдении всех требований технологии каркасного домостроения постройка выдерживает шквальный ветер в 5 баллов;
- Привлекательный внешний вид. Строительная технология предоставляет возможность сооружать каркасные здания разной формы, облицовывать различными материалами;
- Разнообразие планировок по типовым проектам. В каркасных домах 6х7 можно планировать любое расположение межкомнатных перегородок, соответственно площадь жилых комнат и прочих бытовых помещений.


Недостатки:
- В каркасных стенах нельзя прокладывать водопроводы, т.к. будет формироваться конденсат, способствующий разрушению древесины и утеплительного материала;
- Даже тщательная обработка специальными средствами не гарантирует полное отсутствие вредителей внутри каркасной стеновой конструкции;
- Каркасные стены имеют низкие показатели звукоизоляции. Если такое здание возводить в городских условиях, то спастись от шума в жилых помещениях не помогут даже современные изоляционные материалы;
- Уже после возведения каркасного дома перепланировать расположение помещений не удастся;
- Ограничение в этажности здания. Каркасный загородный дом размером 6 на 7 возводится чаще всего либо одноэтажным, либо с мансардой. Полноценные двухэтажные коттеджи таких размеров – редкость.
Проекты таких домов в основном предназначены для возведения недорогого частного жилья в регионах с умеренной влажностью, в средних широтах.
Несмотря на ограничения в этажности, если площадь земельного участка позволяет, к таким домах можно дополнительно пристраивать веранды, крытые и открытые террасы для комфортного семейного отдыха в любой период года.
Проекты одноэтажных домов каркасной конструкции
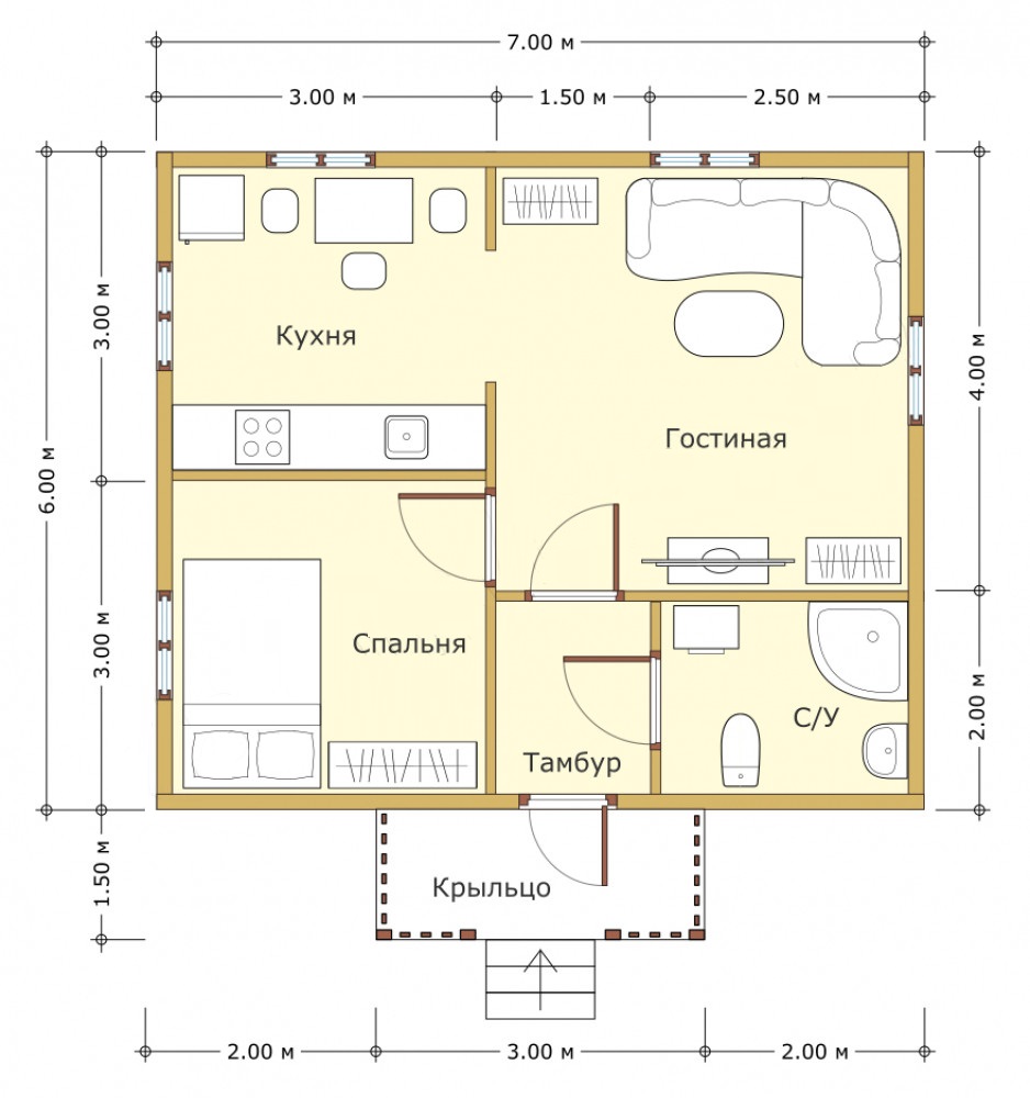
Каркасный жилой дом размером 6 на 7 метров одноэтажный – это наиболее распространенный вариант из типовых проектов.
Несколько вариантов проектов:
- Одноэтажные коттеджи;
- Проекты с дополнительно пристроенным гаражом под легковой автомобиль;
- Жилые постройки с мансардой. Такие каркасные дома 6 на 7 пользуются наибольшей популярностью благодаря возможности обустройства на
- втором этаже дополнительного жилого помещения, например, спальни или рабочего кабинета.


После возведения сооружений по готовым типовым проектам к одноэтажным жилым домам можно без труда пристроить веранду или летнюю террасу для комфортного времяпровождения на природе.


Проекты двухэтажных каркасных домов
Выбирая жилой дом размером 6х7 метров двухэтажный каркасный, специалисты рекомендуют учитывать следующие особенности:
- Часто в проектах таких построек в качестве второго этажа предусмотрено мансардное помещение;
- Двухэтажное здание требует усиления фундаментного основания;
- Чем выше сооружение, тем оно менее устойчиво к ветровым нагрузкам;
- Возводить постройку в 2 этажа сложнее, чем одноэтажную.


Несмотря на сложности возведения таких зданий, они имеют главное достоинство – большую жилую площадь. Соответственно в таком доме уже можно оборудовать несколько спален, например, на первом и втором этаже, а также большую гостиную.
Основные этапы возведения каркасных домов
Небольшой каркасный дом 6х7 вполне можно построить своими руками по готовому типовому проекту. При этом важно соблюдать все требования технологии каркасного домостроения и выполнять монтажные работы в четкой последовательности.
Монтаж фундаментного основания
Работы начинаются с подготовки строительного участка – убирается весь мусор, снимается верхний слой почвы с растительностью. Далее выполняется разметка под фундаментное основание.

Каркасные дома – это достаточно легкие сооружения, поэтому под них можно использовать любой несложный тип фундамента: ленточный, столбчатый либо свайно-винтовой.
Сваи можно использовать практически на всех типах грунта, поэтому такое основание является наиболее распространенным.


Фундаментная обвязка и обустройство пола
На готовом фундаменте выполняется обвязка из деревянных брусьев сечением 15х20 либо 15х15 см. На основание обязательно укладывают слой гидроизоляции, чтобы предупредить гниение пиломатериала. Далее осуществляют монтаж лаг, утепляют основание и кладут черновые полы.


Только после перечисленных строительных работ можно начинать возводить непосредственно каркасный жилой дом размером 6х7 метров с мансардой.
Возведение каркасных стен здания
Для сборки каркаса здания используют предварительно обработанные антисептиком деревянные бруски сечением 5х15 либо 5х20 см. Данные параметры зависят от выбранного утеплителя и предполагаемой толщины стен.
Сначала монтируют все вертикальные стойки, начиная с углов здания, затем горизонтальные. Для фиксации к обвязке и скрепления деревянных элементов конструкции между собой используют стальные уголки и гвозди.


Возведение внутренних перегородок каркасного дома 6 на 7 выполняется также, только они делаются тоньше несущих стен здания.


Выполнение верхней обвязки и монтаж кровли
Поверх готового каркаса выполняется верхняя обвязка для укрепления конструкции. Для ее обустройства используют тот же пиломатериал, что и для каркасных стен.


К обвязке крепят стропильные фермы, состоящие из двух стропильных ног, которые предварительно собирают на земле. В зависимости от выбранного кровельного покрытия поверх обвязки может понадобиться обустройство обрешетки.
Если под крышей планируется размещение дополнительного жилого помещения, стропильную конструкцию тщательно утепляют.


Крайний этап строительства – фасадная и внутренняя отделка жилого дома.